Navigation überspringen
  • Projekte
    • Kirchbau
    • Wohnbau
    • Bildungsbau
    • Sanierung und Denkmalpflege
    • Wirtschaftsbau
  • Kompetenz
    • Bauen heute
    • Kirchliche Räume gestalten
    • Energie - Suffizienz - Nachhaltigkeit
    • Immobilien-Beratung
    • Bauschadens-Beratung
    • Sanierung/ Denkmalpflege
    • Projektentwicklung
    • Gemeinschaftlich Bauen
  • Profil
    • Philosophie
    • Personen
    • Fortbildung
Navigation überspringen
  • Instagramm
  • Impressum
  • Kontakt
  • start

2008-03-16 11:34 von reiner

Evangelische Freikirchliche Gemeinde Leipzig

Neubau des Gemeindehauses

Weiterlesen … Evangelische Freikirchliche Gemeinde Leipzig

Evangelische Freikirchliche Gemeinde Leipzig

2008-03-16 11:34 von reiner

Grundkonzeption

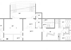
Grundlage unseres Entwurfes ist die Entscheidung, den Gottesdienstraum im Obergeschoss anzuordnen, sowie, dieses Obergeschoss durch die Verwendung des vorhangartig eingesetzten Profilbauglases im EG besonders davon abzuheben. Hierdurch erhält die Gemeinde die Möglichkeit, sich mit einem öffentlichen, vielgestaltigen, offen und großzügig gestalteten Eingangsbereich mit Foyer, Empfangstheke, Cafe, Seminarbereich, Bücherstube mit Anbindung an den Garten, der Stadtöffentlichkeit zu präsentieren.

Eingang/Foyer

Ein von oben wiederum durch eine Glasfassade aus Profilbauglas belichtetes großzügig gestaltetes Treppenhaus lädt ein ins „piano nobile“, nach dem Vorbild städtischer Bürgerhäuser, dem „vornehmen“ Obergeschoss mit Foyer und Gottesdienstraum, Raum der Stille (Erker ebenfalls aus Profilbauglas) und Bürobereich, sowie den Kinderräumen im DG. Als geistliches Modell für diese Raumanordnung kann die Tempelanlage der alttestamentlichen Tradition dienen, die mit ihrer Abfolge von Vorhöfen einen schrittweisen Zugang zum Heiligtum gerade in Anbetracht einer multikulturellen und multireligiösen Umwelt formulierte. Damit wird, übertragen auf ein zeitgemäßes Gemeindemodell, auf der einen Seite im Erdgeschoss ein niedrigschwelliger attraktiver Zugang für alle angeboten, auf der anderen Seite aber der Ort der Gottesbegegnung aus dem Alltag herausgehoben. Der Zugang zum Gottesdienstraum bedarf der bewussten Entscheidung und Hinwendung und wird so in besonderer Weise als Kraftquelle und festlicher Gemeinschaftsraum wirksam.

Gebäudegestalt

Für die Modellierung des Baukörpers war uns wichtig, eine einfache und doch einprägsame Gestalt zu gewinnen, die das Gebäude an diesem besonderen Ort unverwechselbar macht. Dazu dienen die offenen Arkaden vor dem Cafe- und Foyerbereich, die in Spannung stehen zu den großen geschlossenen Wandflächen, die auskragende geschwungene Form des Gottesdienstraumes auf der Gartenseite, sowie die zurückgesetzte Erdgeschoß-Fassade aus Profilbauglas, die am Eingang zurückweicht und einladend in die Tiefe des Raumes führt und das Gebäude zugleich durch Ein- und Ausblicke mit dem öffentlichen Raum verbindet. Alle wichtigen und die Öffentlichkeit ansprechenden Fassaden sind bewusst wie Vorhänge aus Profilbauglas in die sonst schlichten massiven Putzwände eingesetzt.

Gottesdienstraum

Der dargestellte Gottesdienstraum ist auch ohne sakrale Symbolik als der besondere Raum erlebbar. Hierzu dient insbesondere die differenzierte und unerwartete Lichtführung des Verkündigungsbereiches durch ein tief angesetztes horizontales Stadtfenster-Band und ein vertikales Taufband , welches in der auskragenden Taufnische die besondere Bedeutung der Taufe im Baptismus hervorhebt. Ein schmales Oberlicht taucht die hohe Wand zur Straße in indirektes Licht. Die leicht geschwungene Empore erhält ihre Belichtung über die rückwärtige Gartenfassade aus Profilbauglas, die sich durch besonders tief in den Raum streuende Lichtwirkung auszeichnet . Die Fenstertüren zum Garten schaffen einen heiteren Ausblick in den schönen alten Baumbestand.

Navigation überspringen
  • Kirchbau
  • Wohnbau
  • Bildungsbau
  • Sanierung und Denkmalpflege
  • Wirtschaftsbau

Kirchbau

2025-12-11 17:52 von Bernhard Michels

Ev. Kirchengemeinde Troisdorf

Sanierung Quartierszentrum der Ev. Kirchengemeinde Troisdorf

Weiterlesen … Ev. Kirchengemeinde Troisdorf

2016-12-15 15:31 von Bernhard Michels

Freie ev. Gemeinde Gummersbach

Neubau und Erweiterung des Gemeindehauses

Weiterlesen … Freie ev. Gemeinde Gummersbach

2008-03-16 11:34 von reiner

Evangelische Freikirchliche Gemeinde Leipzig

Neubau des Gemeindehauses

Weiterlesen … Evangelische Freikirchliche Gemeinde Leipzig

2007-06-10 21:42 von reiner

Freie ev. Gemeinde Langenfeld

Vision und Wirklichkeit

Weiterlesen … Freie ev. Gemeinde Langenfeld

2003-03-16 10:22 von reiner

Freie ev. Gemeinde Bonn

2008: 1. Preis Kategorie "Raumakustik" der Rigips Trophy

Weiterlesen … Freie ev. Gemeinde Bonn

2000-03-10 20:18 von reiner

Freie ev. Gemeinde Wuppertal-Ronsdorf

2003: Anerkennung beim Architekturpreis freikirchliches Bauen

Weiterlesen … Freie ev. Gemeinde Wuppertal-Ronsdorf

1998-07-08 19:21 von reiner

Freie ev. Gemeinde Gudensberg

1998: 1. Preis beim Architekturpreis für freikirchliches Bauen

Weiterlesen … Freie ev. Gemeinde Gudensberg

 
Navigation überspringen
  • Datenschutzerklärung
Diese Webseite verwendet technisch notwendige Cookies, um ordnungsgemäß zu funktionieren. Falls Sie nicht möchten, dass Cookies auf ihrem Rechner gespeichert werden, nutzen Sie bitte die entsprechenden Möglichkeiten in den Einstellungen Ihres Browsers, um Cookies zu deaktivieren. Gespeicherte Cookies können zudem auch noch nachträglich in den Einstellungen des Browsers gelöscht werden. Der Ausschluss von Cookies kann zu Funktionseinschränkungen dieses Onlineangebotes führen. Datenschutz-Informationen