Navigation überspringen
  • Projekte
    • Kirchbau
    • Wohnbau
    • Bildungsbau
    • Sanierung und Denkmalpflege
    • Wirtschaftsbau
  • Kompetenz
    • Bauen heute
    • Kirchliche Räume gestalten
    • Energie - Suffizienz - Nachhaltigkeit
    • Immobilien-Beratung
    • Bauschadens-Beratung
    • Sanierung/ Denkmalpflege
    • Projektentwicklung
    • Gemeinschaftlich Bauen
  • Profil
    • Philosophie
    • Personen
    • Fortbildung
Navigation überspringen
  • Instagramm
  • Impressum
  • Kontakt
  • start

2007-06-10 21:42 von reiner

Freie ev. Gemeinde Langenfeld

Vision und Wirklichkeit

Weiterlesen … Freie ev. Gemeinde Langenfeld

Freie ev. Gemeinde Langenfeld

2007-06-10 21:42 von reiner

Vision und Wirklichkeit

Nach 10 Jahren zur Untermiete in einer abseits gelegenen LKW Halle wurde die noch junge FeG Langenfeld im Herbst 2007 in zentraler Lage fündig: ein gut 3000m² großes Gewerbegrundstück mit Wohnhaus und Gewerbehallen um einen Garten mit altem Baumbestand war angrenzend an ein innerstädtisches Wohngebiet zu erwerben.

Die Herausforderung bestand darin:

· funktionell : die Bestandsgebäude möglichst geschickt und kostengünstig umzunutzen, um den Neubau auf das Kirchengebäude beschränken zu können

· gestalterisch: das Kirchengebäude als Zentrum der Anlage auch dementsprechend markant und zentrierend (sowohl herausragend, als auch sich einfügend) zu gestalten

Der Entwurf berücksichtigt bei kleinem Budget sowohl das Wachstums-potential der Gemeinde (z.B. nachträglicher Emporeneinbau) in der aufstrebenden Mittelstadt Langenfeld als auch das Potential des Grundstücks zur Entwicklung eines kirchlichen Stadtteilzentrums mit Jugendtreff, Wohnen und Arbeiten o.ä. Angeboten an die Stadt.

Konstruktion

Ein großmaßstäblicher Holzrahmenbau aus Holz-Fertigtafeln bis zu 10m Länge ermöglichte die kurze Bauzeit von 5 Monaten von der Grundsteinlegung bis zum Einzug in die neue Kirche im Januar 2009.
Kräftige abgestufte Rottöne der Fassade aus 3-Schicht-Platten betonen das zentrale Gebäude auf dem Gelände und holen es aus dem hinteren Grundstücksteil optisch an die Straße.
Die prägnante Gestalt der Kirche als kubische „Kiste" aus großformatigen Fertigteilen ästhetisiert die einfachen, rechtwinkligen Großformen der Gewerbebauten aus dem angrenzenden Industriegebiet.

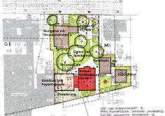
Übersichtsplan und Entwurfszeichnung

Entwurf: Bettina Noesser, Noesser Padberg Architekten, Köln
Ausführung: Architekturbüro Michael Selg, Dormagen
Zimmerei: Fa. Gisbert Duenschede, Arnsberg

Daten zum Neubau Kirche und Umbau Foyer-Gebäude:

Baukosten (incl. Nebenkosten brutto)  739.000 €
Bruttogeschoßfläche Kirche, Lager, Foyer  513 m²
Neu- und Umbaukosten/m²  1440 €/m²
Gesamtprojektkosten incl. Grunderwerb  1.600.000 €

 

Navigation überspringen
  • Kirchbau
  • Wohnbau
  • Bildungsbau
  • Sanierung und Denkmalpflege
  • Wirtschaftsbau

Kirchbau

2025-12-11 17:52 von Bernhard Michels

Ev. Kirchengemeinde Troisdorf

Sanierung Quartierszentrum der Ev. Kirchengemeinde Troisdorf

Weiterlesen … Ev. Kirchengemeinde Troisdorf

2016-12-15 15:31 von Bernhard Michels

Freie ev. Gemeinde Gummersbach

Neubau und Erweiterung des Gemeindehauses

Weiterlesen … Freie ev. Gemeinde Gummersbach

2008-03-16 11:34 von reiner

Evangelische Freikirchliche Gemeinde Leipzig

Neubau des Gemeindehauses

Weiterlesen … Evangelische Freikirchliche Gemeinde Leipzig

2007-06-10 21:42 von reiner

Freie ev. Gemeinde Langenfeld

Vision und Wirklichkeit

Weiterlesen … Freie ev. Gemeinde Langenfeld

2003-03-16 10:22 von reiner

Freie ev. Gemeinde Bonn

2008: 1. Preis Kategorie "Raumakustik" der Rigips Trophy

Weiterlesen … Freie ev. Gemeinde Bonn

2000-03-10 20:18 von reiner

Freie ev. Gemeinde Wuppertal-Ronsdorf

2003: Anerkennung beim Architekturpreis freikirchliches Bauen

Weiterlesen … Freie ev. Gemeinde Wuppertal-Ronsdorf

1998-07-08 19:21 von reiner

Freie ev. Gemeinde Gudensberg

1998: 1. Preis beim Architekturpreis für freikirchliches Bauen

Weiterlesen … Freie ev. Gemeinde Gudensberg

 
Navigation überspringen
  • Datenschutzerklärung
Diese Webseite verwendet technisch notwendige Cookies, um ordnungsgemäß zu funktionieren. Falls Sie nicht möchten, dass Cookies auf ihrem Rechner gespeichert werden, nutzen Sie bitte die entsprechenden Möglichkeiten in den Einstellungen Ihres Browsers, um Cookies zu deaktivieren. Gespeicherte Cookies können zudem auch noch nachträglich in den Einstellungen des Browsers gelöscht werden. Der Ausschluss von Cookies kann zu Funktionseinschränkungen dieses Onlineangebotes führen. Datenschutz-Informationen