Navigation überspringen
  • Projekte
    • Kirchbau
    • Wohnbau
    • Bildungsbau
    • Sanierung und Denkmalpflege
    • Wirtschaftsbau
  • Kompetenz
    • Bauen heute
    • Kirchliche Räume gestalten
    • Energie - Suffizienz - Nachhaltigkeit
    • Immobilien-Beratung
    • Bauschadens-Beratung
    • Sanierung/ Denkmalpflege
    • Projektentwicklung
    • Gemeinschaftlich Bauen
  • Profil
    • Philosophie
    • Personen
    • Fortbildung
Navigation überspringen
  • Instagramm
  • Impressum
  • Kontakt
  • start

2005-06-01 10:11 von reiner

Wohnen im Eifeler Mühlen-Denkmal

Neues Leben in der "Alten Mühle"

Weiterlesen … Wohnen im Eifeler Mühlen-Denkmal

Wohnen im Eifeler Mühlen-Denkmal

2005-06-01 10:11 von reiner

Neues Leben in der "Alten Mühle"

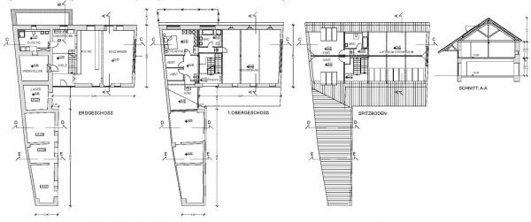
Der rund 500 Jahre alte Südflügel einer denkmalgeschützen Eifeler Mühlenanlage - ursprünglich Pferdewechselstation - mit 1m starken Natursteinwänden u. imposantem Dachtragwerk wurde zu Wohnungen ausgebaut.

Ein torartiges Fenster nach Westen bewahrt als Klammer über zwei Etagen den gestalterischen Zusammenhang der Scheunen-Fassade.

Die gestreute Kleinteiligkeit der Öffnungen auf den Längsseiten wurde behutsam ergänzt. Weitere Dachflächenfenster wurden zur denkmalgerechten Erhaltung der Außenansicht auf die Hof-Innenseite gelegt.

Die Bruchsteinfassade aus Eifeler Grauwacke erhielt eine Innendämmung aus Kalzium-Silikatplatten.

Die zentrale Treppenhalle zur Erschließung der Wohnungen bietet eindrucksvolle Einblicke in das altehrwürdige Dach-Gebälk.

 

Navigation überspringen
  • Kirchbau
  • Wohnbau
  • Bildungsbau
  • Sanierung und Denkmalpflege
  • Wirtschaftsbau

Sanierung

2026-01-06 13:41 von Bernhard Michels

Burg Blankenheim

Sanierung der alten Burganlage Blankenheim

Weiterlesen … Burg Blankenheim

2020-03-05 11:05 von Bernhard Michels

Schloss Arff

Umnutzung und Neugestaltung eines Schlosses aus dem Jahre 1717

Weiterlesen … Schloss Arff

2019-04-17 13:03 von Bernhard Michels

Ein Mühlheimer Schätzchen

Dreifensterhaus in Rheinnähe von 1898

Weiterlesen … Ein Mühlheimer Schätzchen

2014-08-24 10:39 von Bernhard Michels

Umbau der Alten Schule zum Wohnhaus

Denkmal in Düsseldorf

Weiterlesen … Umbau der Alten Schule zum Wohnhaus

2014-07-12 18:02 von Bernhard Michels

Wohnen im Eifeler Mühlen-Denkmal

2. Bauabschnitt

Weiterlesen … Wohnen im Eifeler Mühlen-Denkmal

2007-06-11 12:38 von reiner

Niedrigenergiehaus mit Jugendstil-Charme

Energetische Sanierung eines 100-jährigen Jugendstil-Stadthauses, Langenfeld

Weiterlesen … Niedrigenergiehaus mit Jugendstil-Charme

2005-06-01 10:11 von reiner

Wohnen im Eifeler Mühlen-Denkmal

Neues Leben in der "Alten Mühle"

Weiterlesen … Wohnen im Eifeler Mühlen-Denkmal

 
Navigation überspringen
  • Datenschutzerklärung
Diese Webseite verwendet technisch notwendige Cookies, um ordnungsgemäß zu funktionieren. Falls Sie nicht möchten, dass Cookies auf ihrem Rechner gespeichert werden, nutzen Sie bitte die entsprechenden Möglichkeiten in den Einstellungen Ihres Browsers, um Cookies zu deaktivieren. Gespeicherte Cookies können zudem auch noch nachträglich in den Einstellungen des Browsers gelöscht werden. Der Ausschluss von Cookies kann zu Funktionseinschränkungen dieses Onlineangebotes führen. Datenschutz-Informationen