Alltags-Heldinnen
von Bernhard Michels
Aktuell sind wir beauftragt mit dem Entwurf eines Modellprojektes für die Stiftung Alltagsheld:Innen (www.alltagsheldinnen.org).
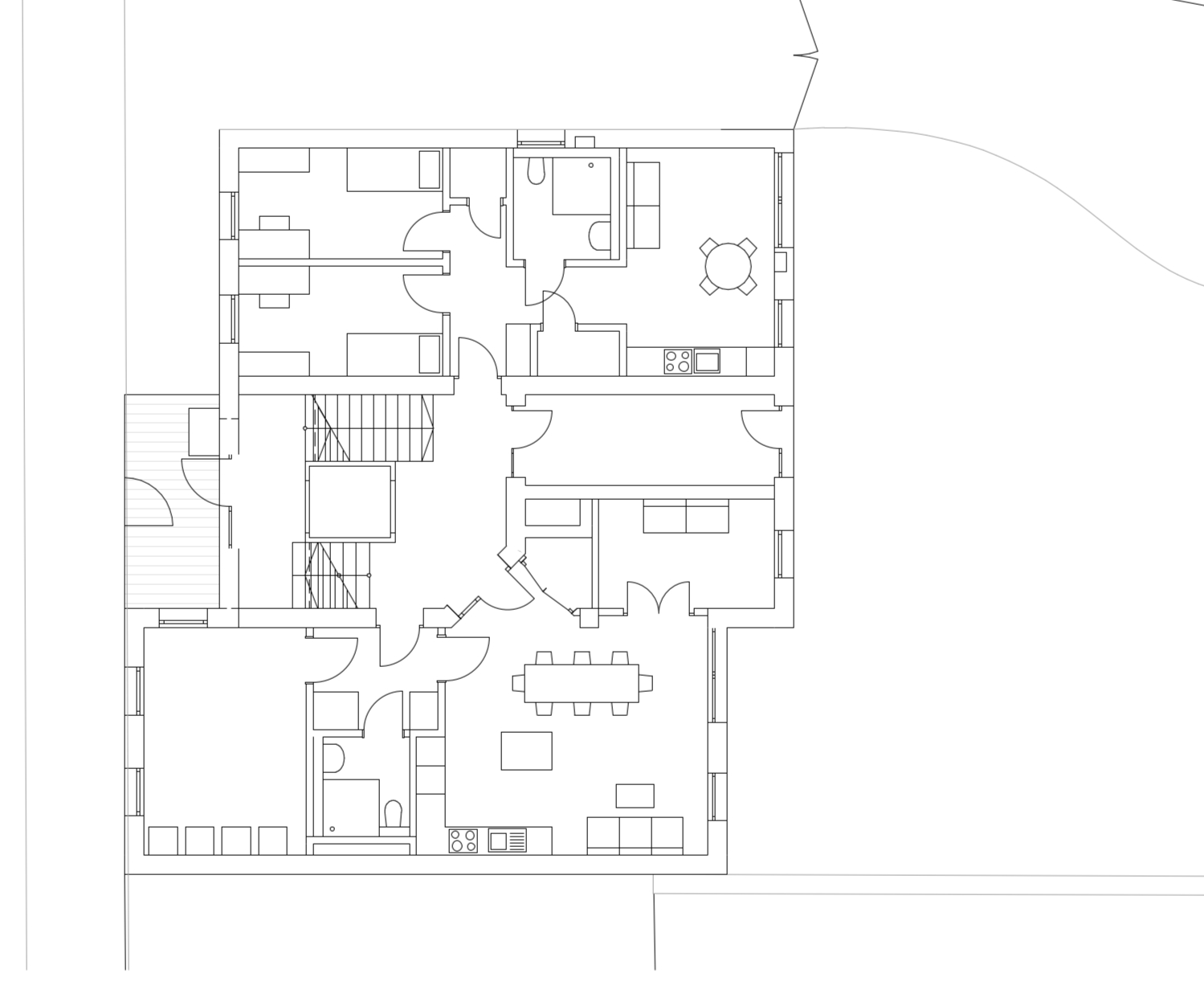
Auf einem innerstädtisch gut angebundenen, doch ruhig gelegenen Grundstück in Solingen planen wir 10 geförderte Wohneinheiten mit Gemeinschaftsräumen in nachhaltiger Holzbauweise und NettoNullStandard*.
Die noch junge Stiftung hat es sich zur Aufgabe gemacht, für die Verbesserung der Lebenssituation Alleinerziehender in unserer Gesellschaft durch politische und mediale Arbeit, aber auch durch konkrete praktische und finanzielle Unterstützung von Ein-Eltern-Familien einzutreten. Dazu zählt Forschung und Aufklärung über die von Diskriminierung und Perspektivlosigkeit geprägte Situation alleinerziehender Wohnungssuchender, zumal es kaum für deren Bedarf passende bezahlbare Wohnungen gibt.
Das Modellprojekt soll konkrete Abhilfe für einige Betroffene schaffen, aber auch beispielhaft zeigen, wie Grundrisse mit privatem Rückzugsraum und Gemeinschaftsräumen auch bei preisgünstigen Mieten suffizient (auskömmlich) im Rahmen des geförderten Wohnungsbaues funktionieren und auch der häufigen sozialen Vereinsamung Alleinerziehender entgegenwirken können – ein öffentlicher Anstoß, diese Zielgruppe bewusst und in angemessener Form in die Projektentwicklung von Investoren, Genossenschaften und Gemeinschaftsprojekten zu integrieren.
Das Grundstück bietet - neben einigen baulichen Herausforderungen - in einem großen Garten viel geschützten Freiraum für Spielen, Gärtnern und Freizeitgestaltung für Klein und Groß, für Rückzug und für Gemeinschaft.
Es macht uns viel Freude, an diesem bislang gesellschaftlich vernachlässigten Thema zu arbeiten und wir erleben Zuspruch und Unterstützung bei allen Beteiligten. Wir hoffen und wünschen dem engagierten BauherrInnen-Team, dass die Realisierung gelingt.
*Jahres-Energieverbrauch im Betrieb </= Eigen-Energiegewinn (z.B. durch PV)
Planungskennzahlen:
| BGF (Bruttogrundfläche) | 1.122 m² |
| WFL (Wohnfläche) | 630 m² |
in 10 barrierefreien Wohneinheiten von 2-5 Zi. zzgl. Gemeinschaftsräumen im EG sowie 400m² Gartenfläche mit Gartenhaus, Fahrradunterstand, Terrasse, Spielplatz